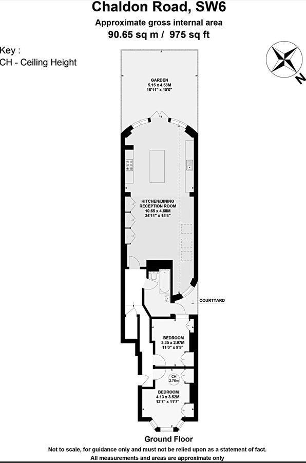
A beautifully presented ground-floor, two-bedroom garden apartment on sought after Chaldon Road.
This charming home offers an exceptional sense of space and flow, centred around a stunning, oversized kitchen reception room that spans the rear of the property. Bathed in natural light and designed for modern living, the room features generous dining and reception areas, ideal for both everyday comfort and entertaining. Large doors open directly onto a private garden.
