A beautifully finished three double bedroom freehold house with a private garden, ideally located moments from Fulham Broadway and Eel Brook Common.
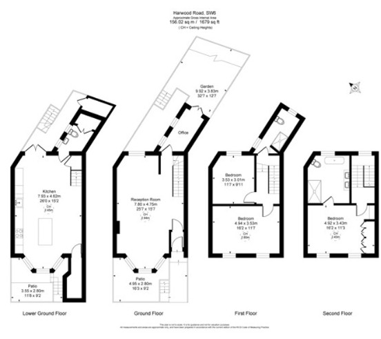
The property is arranged over four floors and offers well-balanced, flexible living space throughout. The kitchen and utility room are situated on the lower ground floor, with direct access to the private garden. The garden can also be accessed from the raised ground floor, creating a seamless connection between indoor and outdoor living. Entry to the house is via the raised ground floor.
The first and second floors comprise three generous double bedrooms and two bathrooms, all of which are presented in very good condition. The accommodation is bright, well maintained and finished to a high standard.
Perfectly positioned close to the shops, restaurants and transport links of Fulham Broadway, as well as the open green spaces of Eel Brook Common, this property offers an excellent combination of location, space and quality.
