
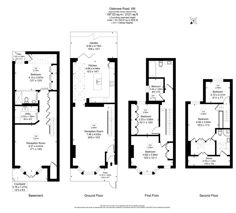
This beautifully maintained, spacious family home on Disbrowe Road offers over 2121 square feet of living space, combining both practicality and charm. The property boasts a large reception room on the ground floor, perfect for relaxing or entertaining, while the eat-in kitchen opens onto a lovely garden.
The standout feature of this home is the expansive basement, which offers exceptional ceiling heights and a large reception area, creating a versatile space that could serve as a family room, home cinema, or recreational area. In addition, the basement includes a generous bedroom and a modern bathroom, adding a sense of privacy and flexibility to the lower level.
With five well-sized bedrooms and the option of a study or a sixth bedroom, this home is perfect for a growing family or those needing extra space. The property also benefits from fantastic storage throughout, ensuring everything has its place.
This beautifully maintained, spacious family home on Disbrowe Road offers over 2121 square feet of living space, combining both practicality and charm. The property boasts a large reception room on the ground floor, perfect for relaxing or entertaining, while the eat-in kitchen opens onto a lovely garden.
The standout feature of this home is the expansive basement, which offers exceptional ceiling heights and a large reception area, creating a versatile space that could serve as a family room, home cinema, or recreational area. In addition, the basement includes a generous bedroom and a modern bathroom, adding a sense of privacy and flexibility to the lower level.
With five well-sized bedrooms and the option of a study or a sixth bedroom, this home is perfect for a growing family or those needing extra space. The property also benefits from fantastic storage throughout, ensuring everything has its place.
