
A wonderful and rarely available opportunity for a purchaser seeking a freehold asset with planning consent in the heart of SW6.
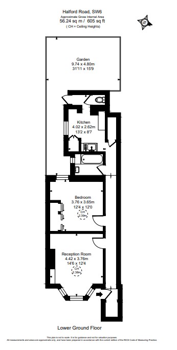
The property is currently configured as two self-contained flats, comprising a one-bedroom garden flat and a spacious four-bedroom upper maisonette. Importantly, planning permission has been granted (2023/01514/FUL) to create three separate apartments, presenting a superb development or resale opportunity in one of Fulham’s most desirable residential locations.
A wonderful and rarely available opportunity for a purchaser seeking a freehold asset with planning consent in the heart of SW6.
The property is currently configured as two self-contained flats, comprising a one-bedroom garden flat and a spacious four-bedroom upper maisonette. Importantly, planning permission has been granted (2023/01514/FUL) to create three separate apartments, presenting a superb development or resale opportunity in one of Fulham’s most desirable residential locations.
