
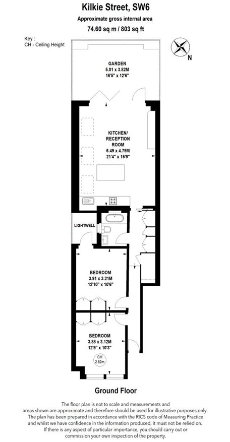
An immaculately finished two double bedroom garden flat in the heart of Fulham’s sought-after Sands End. Finished to an exceptional standard throughout, this stylish home is ready to move straight into.
The property features its own private entrance, two well-proportioned double bedrooms with built-in wardrobes, and a sleek contemporary bathroom. To the rear, a bright open-plan living space with a fully fitted kitchen opens via bi-folding doors onto a west-facing, low-maintenance garden - perfect for modern living and entertaining.
Ideally located on a quiet residential street moments from Wandsworth Bridge Road’s cafés and restaurants, with excellent transport links and easy access to South Park and the riverside.
An immaculately finished two double bedroom garden flat in the heart of Fulham’s sought-after Sands End. Finished to an exceptional standard throughout, this stylish home is ready to move straight into.
The property features its own private entrance, two well-proportioned double bedrooms with built-in wardrobes, and a sleek contemporary bathroom. To the rear, a bright open-plan living space with a fully fitted kitchen opens via bi-folding doors onto a west-facing, low-maintenance garden - perfect for modern living and entertaining.
Ideally located on a quiet residential street moments from Wandsworth Bridge Road’s cafés and restaurants, with excellent transport links and easy access to South Park and the riverside.
